• Hetterich Architekten BDA

  • Hetterich Architekten BDA

  • Hetterich Architekten BDA

  • Hetterich Architekten BDA

  • Hetterich Architekten BDA

  • Hetterich Architekten BDA

  • Hetterich Architekten BDA

  • Hetterich Architekten BDA

Wohnraum für Studierende Allmandring V

Das neu konzipierte Gebäude bildet einen städtebaulichen Eckpunkt auf dem Campus StuttgartVaihingen und schließt die Zone der Wohnanlagen für Studierende nach Südwesten hin klar ab. Im Gesamtkonzept der städtebaulichen Akzente und Hochpunkte des Universitätscampus ist an dieser Stelle ein 'Eckpfeiler' des Gesamtgefüges logisch und erwartbar.
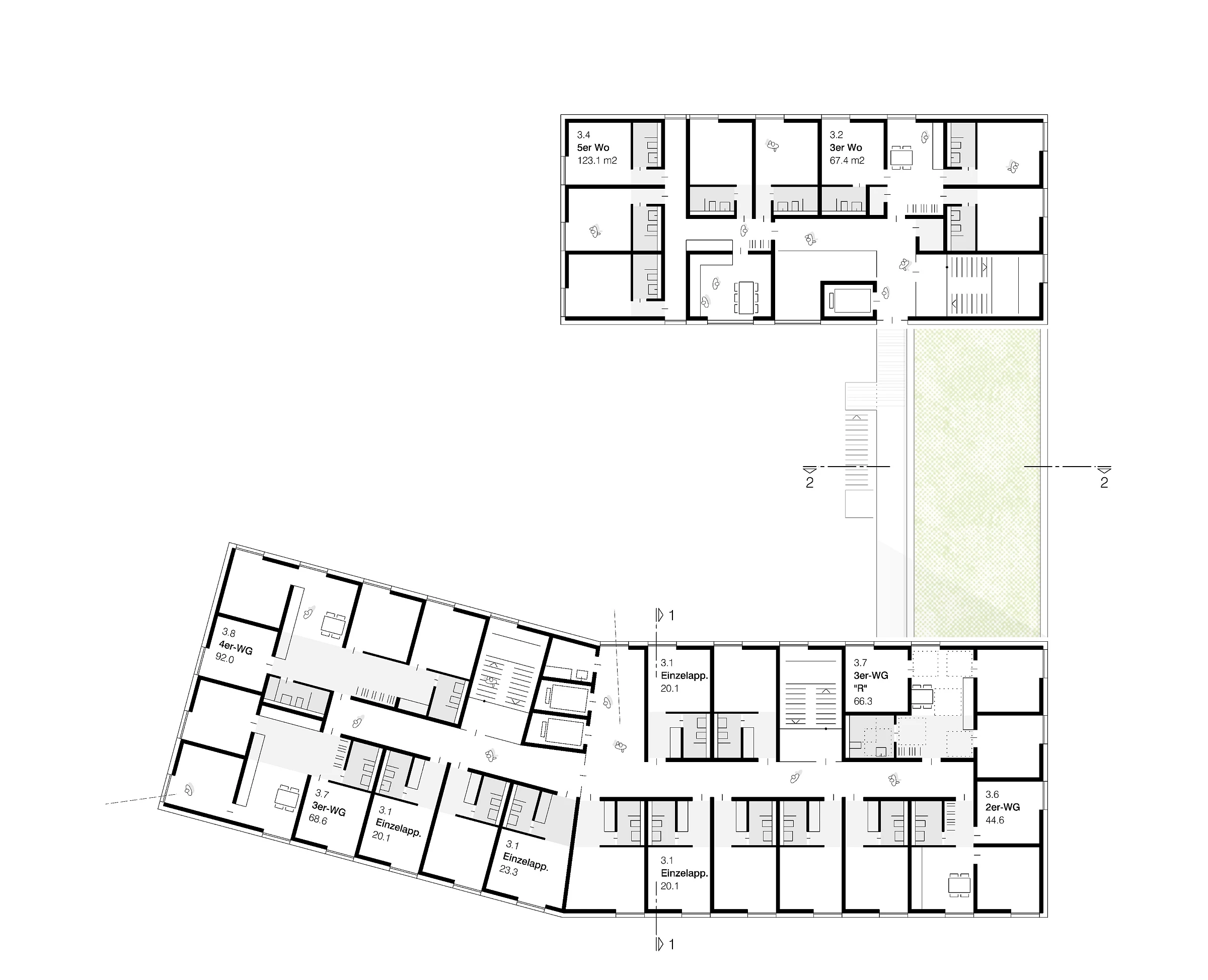
Die Baukörper schließen das städtebauliche Arrangement der bisherigen Wohnanlagen ab, fügen sich jedoch in die vorgefundene Struktur und in deren bauliche Dichte ein. Das Gebäude besteht aus zwei unterschiedlich großen Baukörpern. Sie korrespondieren insbesondere über die sie verbindenden Gemeinschaftszonen. Als Landmarke, etwas westlich vom Allmandring abgesetzt, hat der Wohnturm eine klare, sehr leicht auffindbare Zugangszone, die durch eine zweigeschossige Öffnung der Ebenen 0 und 1 akzentuiert wird. 


Das Gebäude ist als wirtschaftlicher Zweispänner angelegt. Als Sonderform wird das Nebengebäude ganz auf die hier situierten Wohngruppen zugeschnitten. Die Wohneinheiten sind allseitig orientiert, wobei aufgrund der Gebäudestellung keine reinen Nordund Südorientierungen entstehen 
Das Wohnheim ist durchgehend barrierefrei gestaltet, alle Bereiche sind stufenlos erreichbar über schwellenlose Zugänge und mit den Aufzügen, Rampen im Außenbereich. Türen vorbehindertengerechten Zimmern sind elektromotorisch gesteuert. 


Auslober: Studierendenwerk Stuttgart
Art des Wettbewerbs: Realisierungswettbewerb

20 Teilnehmer, Teilnahmewettbewerb