• Studentenwohnheim, Kollagenskizze des Eingangs

     Hetterich Architekten BDA

  • Studentenwohnheim Lageplan

    Hetterich Architekten BDA

  • Hetterich Architekten BDA

  • Hetterich Architekten BDA

  • Hetterich Architekten BDA

  • Hetterich Architekten BDA

  • Hetterich Architekten BDA

  • Hetterich Architekten BDA

  • Hetterich Architekten BDA

Studierendenwohnheim "Blaich" Platzierung/Auszeichnung: #3

Das Wohnheim fügt sich durch seine klare Baukörperstruktur und -stellung auf dem Grundstück in die heterogene städtebauliche Gesamtsituation mit unterschiedlichsten Baukörperformen und -größen ein. Allseitige Öffnungen zum Innenhof gliedern das Gesamtvolumen des viergeschossingen Gebäudes und schaffen Transparenz. Straßenseitig entsteht durch den erdgeschossigen Rücksprung eine arkadenartige Vorzone. Die bestehende Durchwegung des Grundstücks wird erhalten und stellt eine großzügige Verbindung vom Straßenraum zum Innenhof und zur gemeinschaftlich genutzten Grünfläche her. 

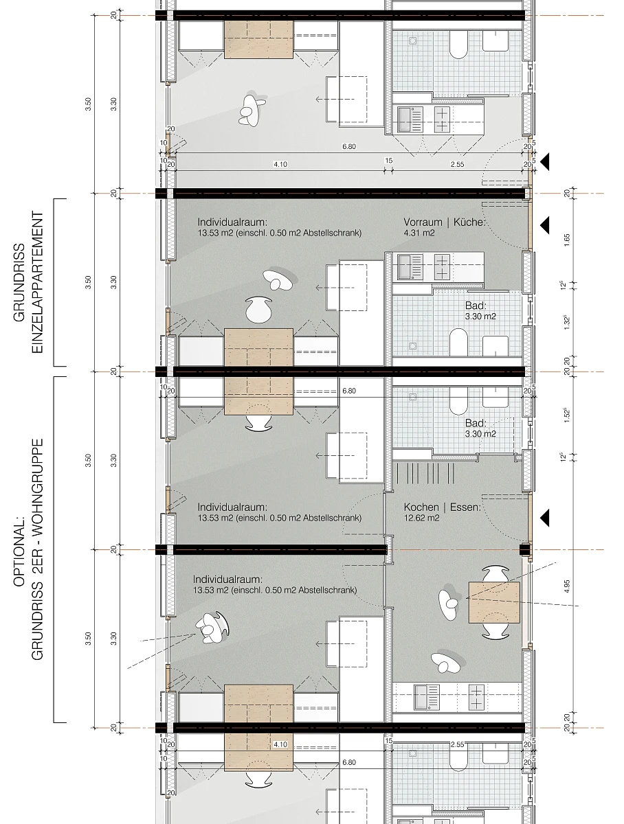
Das Gebäudes ist durch seine klare Struktur geprägt. Die einzelnen Wohneinheiten und Sonderräume werden über den grünen Innenhof erschlossen. Offene Laubengänge mit großzügen Blickbeziehung zum Außenraum führen zu den einzelnen Appartements. Die Orientierung im Wohnheim ist klar und übersichtlich. Der zweite bauliche Flucht- und Rettungsweg wird über eine offene Treppe im Innenhof sichergestellt. Sondernutzungen wie Gemeinschaftsräume, Waschlounge, Hausmeisterräume und Fahrradstellplätze sind erdgeschossig angeordnet. Technikflächen und PKW-Stellplätze werden unterirdisch nachgewiesen. 

Auslober: Studentenwerk Oberfraken
Art des Wettbewerbs: Realisierungswettbewerb

29 Teilnehmer, mit Teilnahmewettbewerb

Alle Individualräume sind windmühlenflügelförmig nach außen orientiert und bieten ein hohes Maß an Privatsphäre. Die Orientierung der Sanitärräume zum gemeinsamen Innenhof erlauben eine natürliche Belichtung und Belüftung. Die Räume sind geprägt durch natürliche Materialen wie Linoleumbeläge und Möbel aus lasiertem Fichtenholz. Geschosshohe Fenster ermöglichen Ausblicke in die umgebenden Grünräume und gewährleisten eine angenehme Belichtung der Individualräume. 

Die wirtschaftliche Schottenkonstruktion ist gegenüber einer reinen Skelettkonstruktion oder massiven Außenwänden kostengünstig und effizient. Die kurzen Spannweiten gewähren ein durchgängiges
und einfaches statisches Gesamtkonzept. Geschossdecken werden als Massivdecken mit Filigrandeckenelmenten ausgeführt (hoher Vorfertigungsgrad, bauliche Brandschutz- und Schallschutzanforderung können leicht nachgewiesen werden).