• Hetterich Architekten BDA

  • Hetterich Architekten BDA

  • Hetterich Architekten BDA

  • Hetterich Architekten BDA

  • Hetterich Architekten BDA

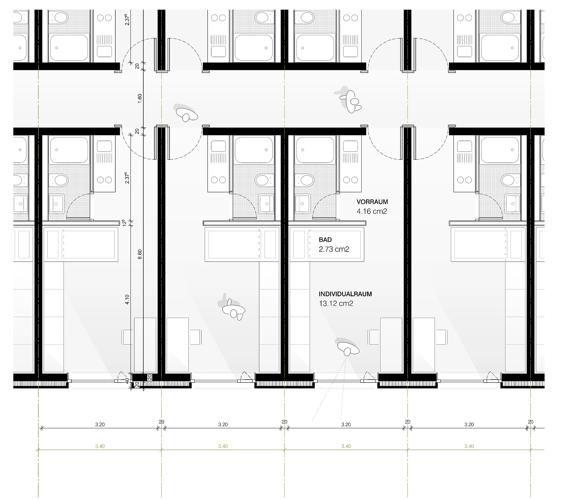
Studierendenwohnheim und Kita am Langemarckplatz

Das neu konzipierte Gebäude fügt sich städtebaulich in die Abfolge der Volumina in der Hofmannstraße sowohl in der Grundrissstruktur, als auch in der Höhenentwicklung ein. Die Ecke Langemarckplatz | Hofmannstraße wird klar definiert.
Die Kinderkrippe, erschlossen vom Langemarckplatz, trennt den Freiraum der Mensa vom „Kinderspielen“. Der allseitig umschlossene Außenbereich wird zu einem intimen Außenraum, der Mensahof zum eher öffentlichen Platz mit Anbindung an den Langemarckplatz.
Die getrennten Zugänge zum Studentenwohnheim und zur Kinderkrippe sind deutlich markiert, zugehörige Fahrradstellflächen zum großen Teil ebenerdig angeordnet. Der Gemeinschaftsraum im obersten Stockwerk ist Rückzugsbereich und Treffpunkt für die dort wohnenden Studenten. 

Die vorhandene wertvolle Grünstruktur wird weitgehend erhalten und wird zum Ordnung gebenden Faktor. Auf Möblierung wird bis auf wenige Langbänke zugunsten der großzügigen Durchwegung verzichtet. 

Auslober: Studentenwerk Erlangen
Art des Wettbewerbs: Realisierungswettbewerb

15 Teilnehmer, Teilnahmewettbewerb