• Studierendenwohnheim mit serieller WDVS Fassade

    Katrin Heyer

  • Studierendenwohnheim mit serieller WDVS Fassade

    Katrin Heyer

  • Studierendenwohnheim mit außenliegender Treppe

    Katrin Heyer

  • Studierendenwohnheim mit Sichtbeton Treppenhaus

    Katrin Heyer

  • Studierendenwohnheim mit Sichtbeton Treppenhaus

    Katrin Heyer

  • Appartement in Studierendenwohnheim

    Katrin Heyer

  • Appartement in Studierendenwohnheim

    Katrin Heyer

  • Studierendenwohnheim mit Gemeinschaftsraum mit Ausblick

    Katrin Heyer

  • Katrin Heyer

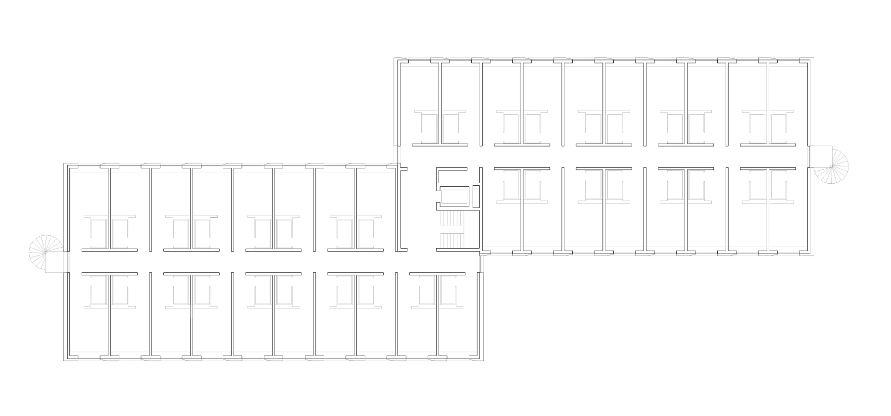
Studierendenwohnheim "Am Tappert II"

Das neue Wohnheim fügt sich durch seine klare Baukörperstellung und die Orientierung entlang der Ost-West-Achse harmonisch in die heterogene städtebauliche Umgebung ein. Es verzahnt sich mit dem angrenzenden Landschaftspark und respektiert die Schutzzone des Sendelbachs.

Ein zentraler Eingang erschließt das Gebäude. Stichflure mit Blickbeziehungen ins Grüne führen zu den einzelnen Appartements. Alle Wohnräume sind ost- oder westorientiert, großzügige Sitzfenster schaffen helle, freundliche Räume mit Bezug zur Natur. Die Gemeinschaftsflächen im Erdgeschoss öffnen sich zur ruhigen Grünfläche Richtung Tappert.

Die durchgängige Barrierefreiheit, klare Orientierung und wirtschaftliche Schottenkonstruktion machen das Projekt besonders nutzerfreundlich und effizient. Kurze Spannweiten, Filigrandecken und ein hoher Vorfertigungsgrad erfüllen alle Anforderungen an Schall- und Brandschutz.

Eine PV-Anlage auf dem Gründach betreibt die Luft-Wasser-Wärmepumpe und deckt einen Großteil des Eigenbedarfs. Dreifachverglasung, hochgedämmte Außenhülle sowie natürliche Be- und Entlüftung sorgen für eine dauerhaft energieeffiziente und wartungsarme Gebäudetechnik – ganz ohne aufwendige Systeme.

Bauherrschaft: Riedel Bau AG als Generalunternehmer für das Studierendenwerk Oberfranken
Verfahren: Wettbewerb, 1.Platz
Leistungsphasen: 1-5
Baubeginn: 2023
Fertigstellung: 2024