• Hetterich Architekten BDA

  • Hetterich Architekten BDA

  • Hetterich Architekten BDA

     

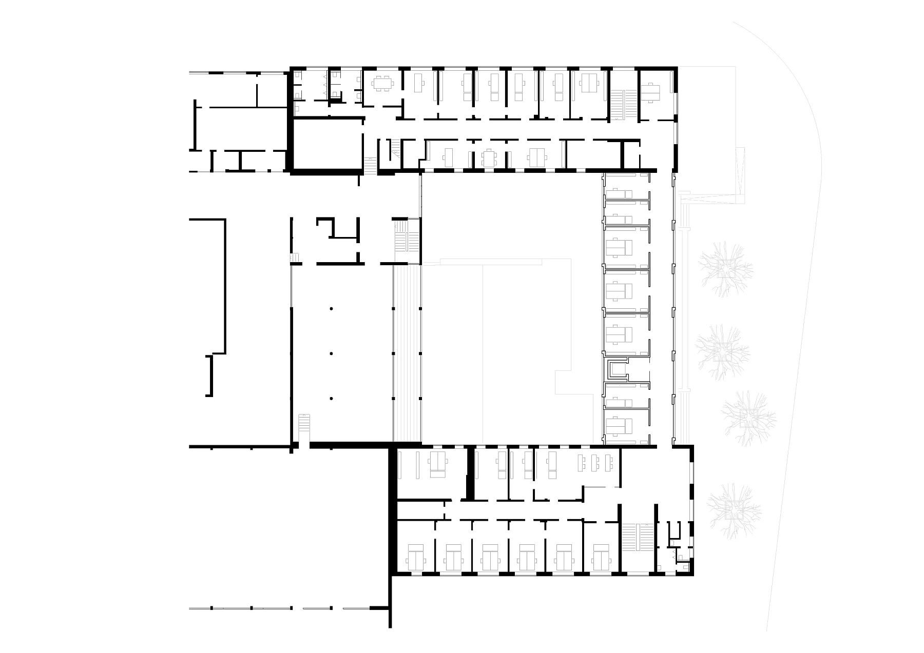
Verwaltungsgebäude Studentenhaus

In dem Gebäudekomplex des unmittelbar am innerstädtischen Ringpark gelegenen Studentenhauses befinden sich Stadtmensa mit Burse und Caféteria, zentrale Dienste und Verwaltung des Studentenwerks Würzburg.
Bereits seit 1928 ist hier eine studentische Verpflegungseinrichtung untergebracht. 

Das Verwaltungsgebäude wird als Ersatzneubau konzipziert. Dabei wird auch der Zugangsbereich der Gesamtanlage neu
geordnet. Im Rahmen des Abbruchs und Neubaus wird neben der Erweiterung der Nutzflächen auch die barrierefreie Erschließung des öffentlichen Gesamtgebäudes realisiert. Ausgehend von der zentralen überdeckten Erschließungsfläche gelangt man über den zentral zugänglichen Personenaufzug in die neu strukturierten Bereiche des öffentlichen
Publikumsverkehrs und in die Verwaltungsräume. 

Bauherrschaft: Studierendenwerk Würzburg
Verfahren: VGV Verfahren
Leistungsphasen: 1-9
Baubeginn: 2012
Fertigstellung: 2014
Projektpartner: Aischa Vogel, E-Plan GmbH, R&P Ruffert Ingenieurgesellschaft mbH, Planungsbüro Schießl GmbH