Neubau Wohnbebauung Neutorstraße - Maßnahme 2

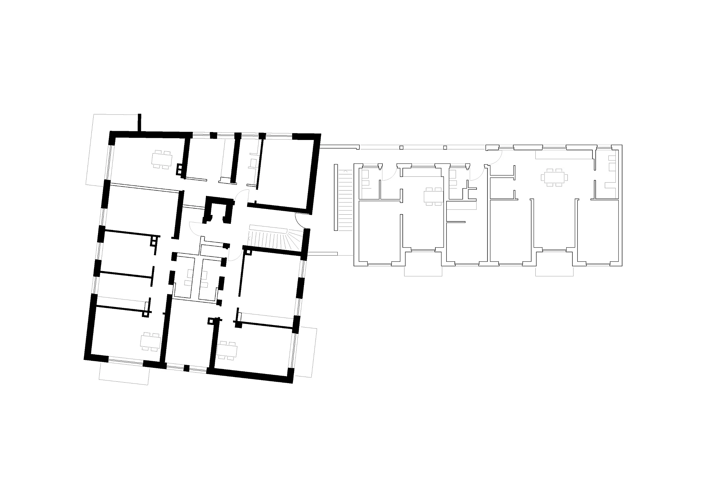
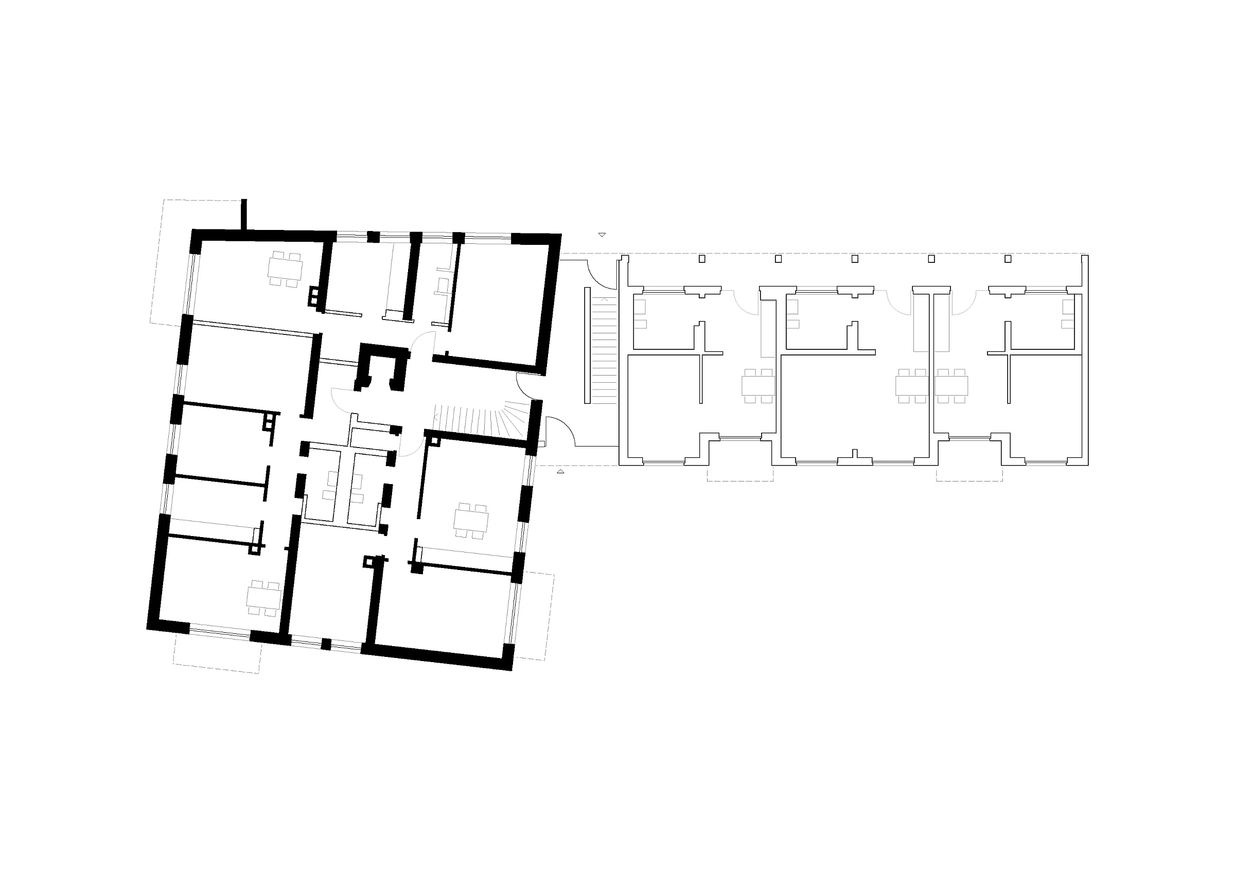
Anstelle einer einstöckigen Garagenzeile mit 6 Einzelgaragen wurde im Zuge der Sanierungs- und Nachverdichtungsmaßnahmen der Mehrfamilienwohnhäuser der Wohnungsbaugenossenschaft St. Bruno-Werk e.G. am Standort Haugerring / Neutorstraße ein sechsgeschossiger Wohnungsbau als Lückenschluss der Blockrandbebauung errichtet.
Insgesamt wurden 16 Wohneinheiten unterschiedlichen Wohnungsgrößen (1-Zimmer-Appartements, 2- bis 4-Zimmer-Wohnungen, barrierefreie Wohnungen im Erdgeschoss). Alle Wohnungen werden über einen Laubengang vom stark befahrenen Haugerring erschlossen; Wohn- und Schlafräume orientieren sich zum geschützten grünen Innenhof.

Die vertikale Erschließung erfolgt in der Fuge zum angrenzenden sanierten Gebäude, der für beide Häuser einen Mehrwert generiert: Durch das neue Treppenhaus erhält des benachbarte Bestandsgebäude einen zweiten baulichen Flucht- und Rettungsweg. Der Neubau ist auf allen Ebenen über den Aufzug im benachbarten Gebäude barrierefrei erschlossen.

Bauherrschaft: St.Brunowerk eG
Verfahren: Direktauftrag
Leistungsphasen: 1-9
Baubeginn: 2021
Fertigstellung: 2022
Projektpartner: Och statikdesign, Herbert Haustechnische Planungs GmbH, E-Projekt Sondheimer