• Innenhof eines Jugendwohnheimes mit Sichtbetonfassade

    Valentina Damian

  • Außenspielbereich überdacht eines Jugendwohnheimes

    Valentina Damian

  • Innenbereich eines Jugendwohnheimes

    Valentina Damian

  • Innenbereich eines Jugendwohnheimes

    Valentina Damian

  • Innenbereich eines Jugendwohnheimes

    Valentina Damian

  • Innenbereich eines Jugendwohnheimes

    Valentina Damian

  • Innenhof eines Jugendwohnheimes mit Sichtbetonfassade

    Valentina Damian

  • Außenspielbereich überdacht eines Jugendwohnheimes

    Valentina Damian

  • Innenhof eines Jugendwohnheimes mit Sichtbetonfassade

    Valentina Damian

  • Innenbereich der Großküche eines Jugendwohnheimes

    Valentina Damian

  • Innenbereich der Großküche eines Jugendwohnheimes

    Valentina Damian

  • Innenbereich eines Jugendwohnheimes

    Valentina Damian

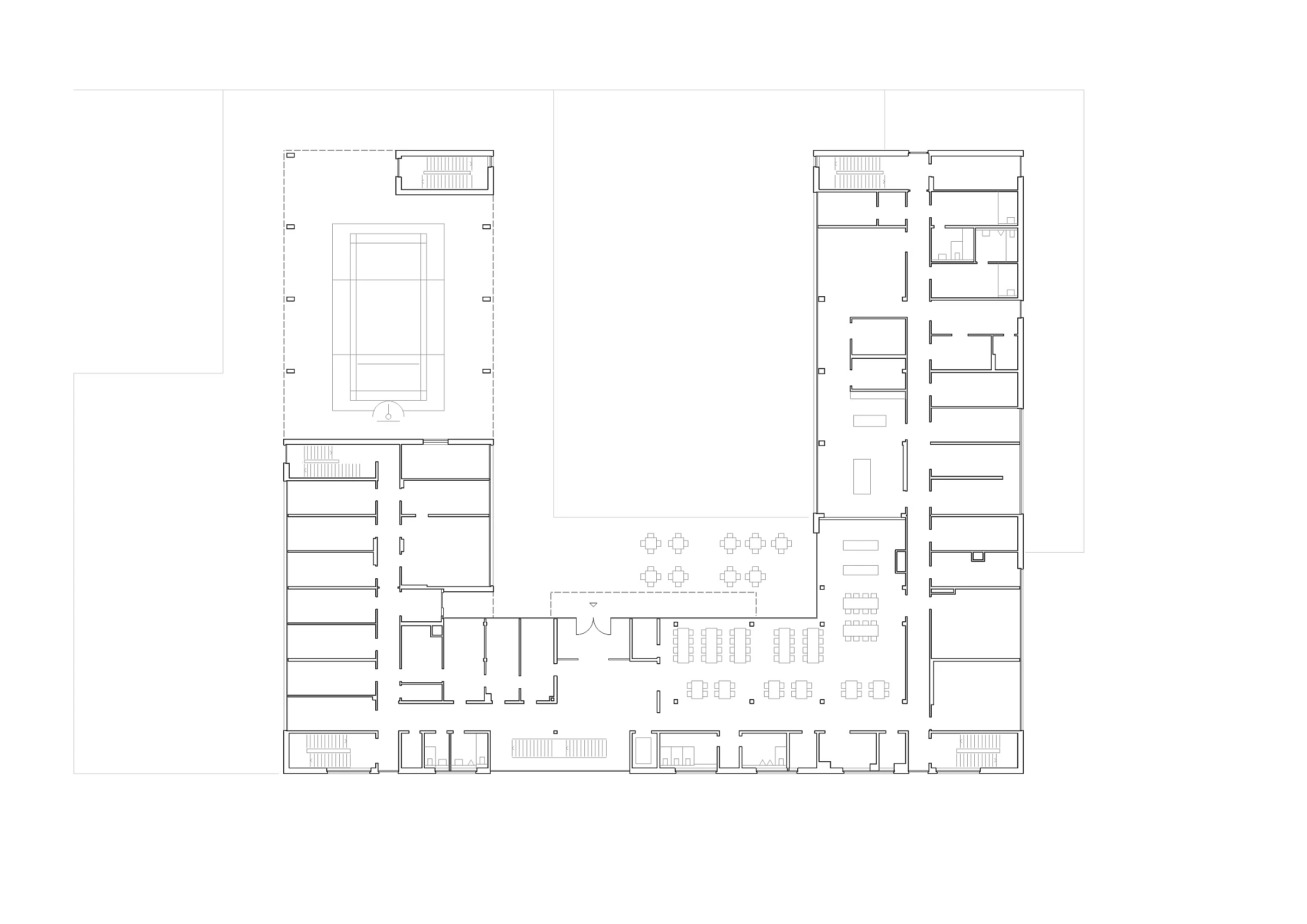
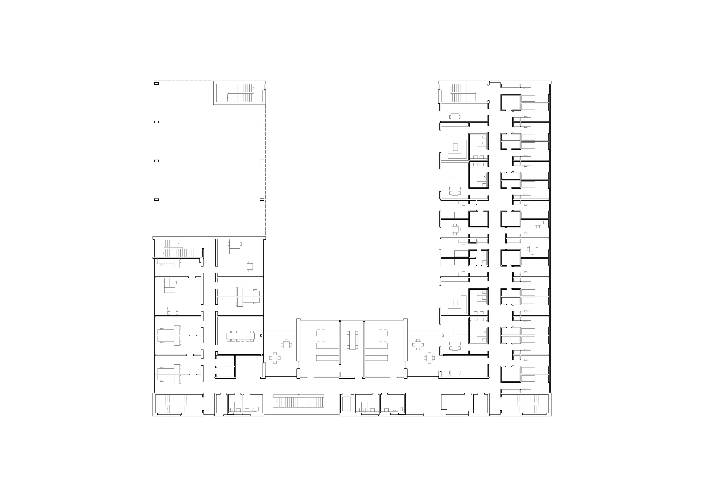
Jugendwohnheim

Das Wohnheim auf dem Konversionsgelände der ehemaligen Schochkaserne bietet in insgesamt 120 Appartements Platz für ca. 165 in Auszubildende.
Darüber hinaus erfüllt das Gebäude eine Vielzahl weiterer Aufgaben: Neben der Verwaltung gibt es Beratungsstellen, Ausbildungsbereiche für Hauswirtschaft und Kochen, gemeinschaftlich genutzte Räume für Freizeit und Lernen und eine Großküche mit angegliedertem Speisesaal zur Selbstversorgung. Ein Flügel des U-förmigen Gebäudes ist zweigeschoßig ausgenommen, sodass ein überdachter Sportplatz für die Jugendlichen entsteht.

Bauherrschaft: Katholisches Jugendsozialwerk München e.V. 
Verfahren: VoF
Leistungsphasen: 1-7 und 9
Baubeginn: 2016  
Fertigstellung: 2018
Projektpartner: Hitzler Ingenieure, Bauleitung: oberprillerarchitekten, ibdrm GmbH & AJG Ingenieure GmbH, Bummer Hof Planungs-GmbH